


Pereda Residencial es un exclusivo conjunto de viviendas de diseño moderno y funcional, ubicado en pleno centro de Beniparrell. Pisos amplios y luminosos, con terrazas, cocinas abiertas al salón y opciones de personalización.
Cuenta con zonas comunes como solárium, espacio para bicicletas y plazas de garaje con preinstalación para carga de vehículo eléctrico.
⬇ Descargar Memoria de Calidades| Ubicación | Beniparrell, Valencia |
| Nº viviendas | 12 tipologías |
| Dormitorios | 1, 2 y 3 dorm. |
| Estado | En comercialización |
| Promotor | ClarPal |
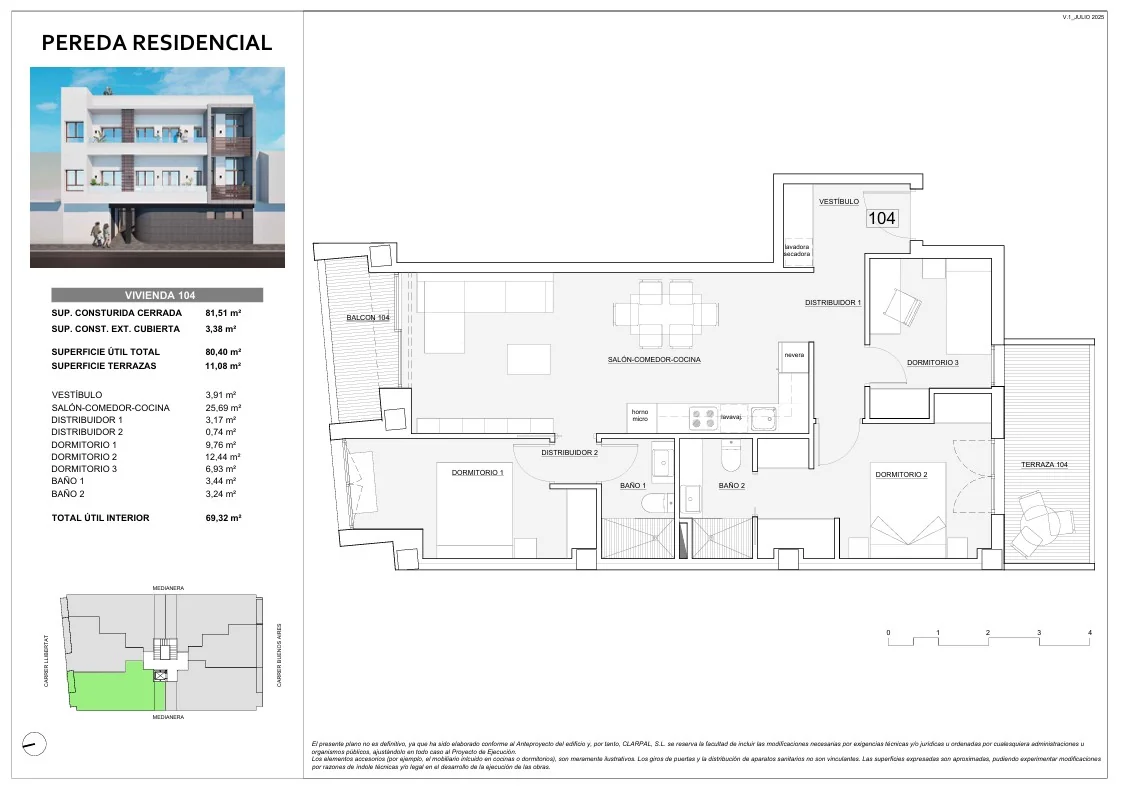
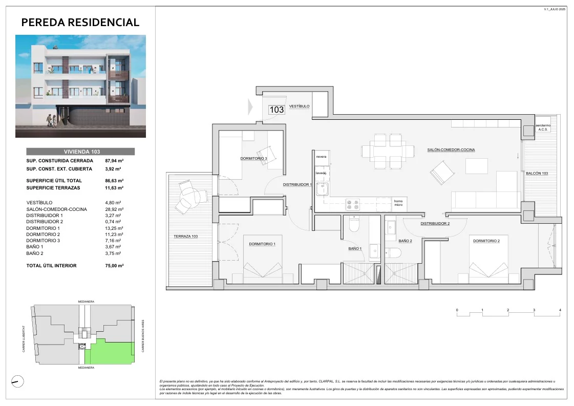
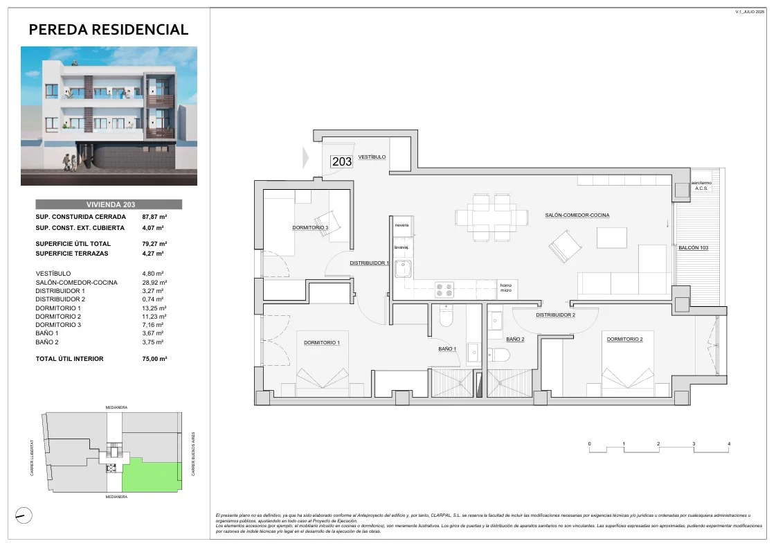
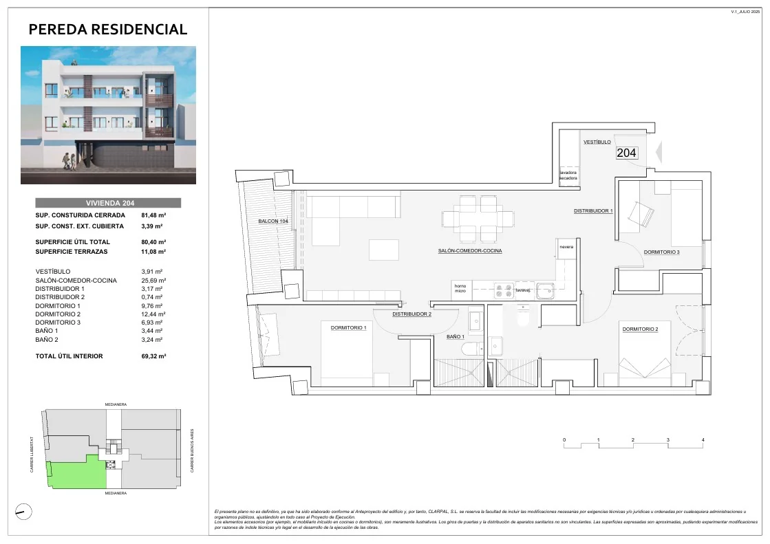
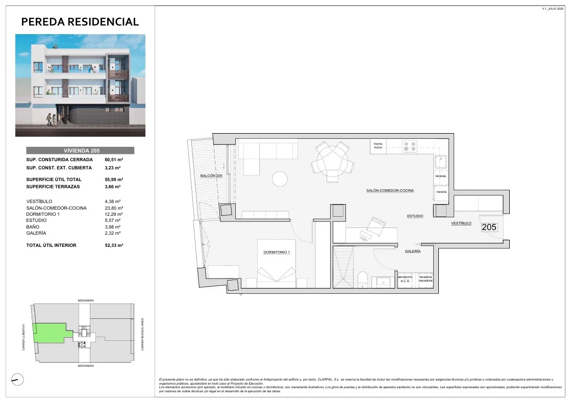
Elige entre nuestras 12 tipologías de vivienda, diseñadas para maximizar la luz, el espacio y el confort.
A solo 12 km de Valencia. Localidad acogedora con ambiente familiar, servicios completos y buena conexión por tren, autobús y acceso directo a la A-7.

Planos, memoria de calidades, precios y disponibilidad. Nuestro equipo te contacta en 24–48 h. Sin compromiso.